As part of our research for Medium size practices and projects we had two presentation:
1. Richard Cottrell presenting Cottrell&Vermeulen Architecture
2.Gonzalo Coello de Portugal presenting Binom Architects
These presentations were followed by a site visit to The Roca Gallery, a building Binom Architects were involved with.
Cottrell&Vermeulen Architecture
Richard have presented us architectural projects on a medium scale. He talked about the working processes and relationships between each stage of making of a design, in relationship to users and authorities.
He’s an associates and architect for a London based architecture practice, Cottrell&Vermeulen, award -winning practice. The main focus for them during the last 20 years of operating have been educational and community projects. They have worked with various governmental bodies for example Birmingham City Council, National Day Nurseries Association, The British Council or The UK Department for Education just to mention a few. The work is always a collaboration with clients, users and even children through workshops and consultation to investigate all sorts of approach to each project. They keep a very open mind, as they know how much can every single person’s opinion can achieve if it’s heard by the right people.
Some examples of their work:
Krishna Avanti Primary School, Edgware in Middlesex, a reflection of the Hindu community, also a state of art educational environment.
http://www.chakranews.com/opening-of-second-hindu-school-in-uk/970
Broadway Secondary School, Birmingham, where every space have been renewed or rebuilt creating a vibrant and stimulating study environment.
http://clippings.com/projects/broadway-secondary-school-birmingham-45383
The Cardboard Building, Westcliff-on-Sea, a multi-award winning, origami-like building is a permanent cardboard building, the first in Europe. It’s an example in innovation and research projects that the practice has carried out on sustainable design and energy saving. Cardboard is a very incredible building material for the following reasons; it has environmentally low-impact, it’s easy to manufacture, it’s a waste-product, can be made from recycled materials, it’s a good insulators, it has a very attractive texture and it’s cheap.
http://www.guardian.co.uk/artanddesign/shortcuts/2012/apr/20/cardboard-buildings-future
Rude Britannia Exhibition at the TATE Britain, London. The practice doesn’t limit themselves to building design, but they also design for exhibitions in the TATE, National Gallery or the British Council for instance.
http://www.tate.org.uk/whats-on/tate-britain/exhibition/rude-britannia-british-comic-art
Binom Architects
This practice is lead by Gonzalo Coello and Marta Granda Nistal. They have both studied at Universidad Politecnica of Madrid, from where they took different routes into furthering their studies. Marta went to explore Chicago and the big USA, whereas Gonzalo went to La Sapienza University in Rome. They have worked individually on a range of luxurious residential and commercial projects across the UK, Moscow, Kuala Lumpur, but their main base is London and Madrid.
I would like to mention a few of their projects that they have worked on as a practice before going into more detail about The Roca Gallery in London, our main focus of today’s studies. Sustainability, exhibition spaces and temporary structures is what mainly covered by Binom Architects.
Recycled Chandelier at Madrid Fitur Temporary Pavilion, a competition winning entry this year. It was an installation designed for the Spanish Ministry of Agriculture, Food and Environmental Affairs. It reminds me of a landscape made out of cardboard tubes, turned upside down, in very mathematical forms and shapes. It’s a very simple idea, very cleverly executed. It’s eco-friendly design also which is one attribute the practice concentrates on.
Art Walk Installation in London Regents Street was also a competition winning entry. In 2009, a big street festival in London’s centre showcasing the significance of Madrid to the Spanish tourist industry. As both of the directors studied and lived in Madrid for a very significant amount of time, it was an enjoyable challenge for them to represent their loved city to their new city, to the London audience. The installation since has been reconstructed for short periods of times in 6 cities. The amazing thing about the design and construction part of it keeping in mind that they only had 4 hours to set up everything.
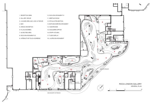
Our main focus was a London based building Binom architects have worked on was the Roca Gallery, an amazing futuristic, multi-purpose building Zaha Hadid Architects have designed. The building reminds me of a connection of underground tunnels refined for a higher purpose.
The building was completed in 2011 and is 1,100 square metre, a very vast amount of space which will host a range of social and cultural events. The space is a true design environment, inspirational and stimulating and will engage with the visitor to showcase a leading bathroom company from Spain, Roca’s products. Binom has not been involved with the design stage, but the propositions to consultants, coordinating the design teams and dealing with permissions. Even through this, it is a massive accomplishment and opportunity for them to work very closely with an company like Zaha Hadid, as this will gain them connections and name in the industry, which is why I can completely understand their excitement about this project.
Zaha Hadid is very inspired by water, and the concept for this building presents this aswell. Being a bathroom company’s showroom, it worked completely well, the space expressing openness and adaptability, innovation and modernism. The space was created wisely that is is much more than just a showroom, it incorporates many media and social aspects within this space and can be used in many more forms. There’s a continuous, uninterrupted interweave from the facade, which in itself opens up the display environment form the front.
Upon arriving at the Roca, I notice the glowing water drop-like ‘pods’ building the spine of the central space which leads to other areas of the building as the knowledge hub, the research hub and the multi-media seating area.
The gallery itself is extremely flexible and have a variety that will surely blow everyone off their feet for one reason or an other.
I am truly amazed by the design and it is in a style that I myself want to grow into.
http://www.rocalondongallery.com
http://www.zaha-hadid.com/architecture/roca-london-gallery/























